Point Cloud to 2D CAD

Point Cloud to 2D CAD Convertion
Point cloud to 2D CAD is converting a three-dimensional point cloud, a collection of points measured by 3D Laser Scanners, into a two-dimensional CAD drawing.
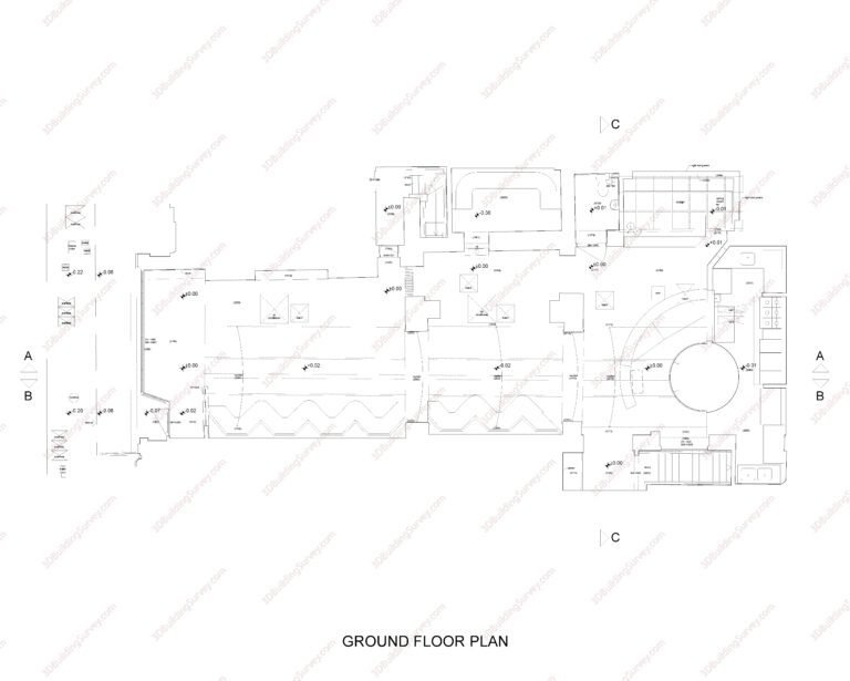
Our CAD experts convert point cloud data into comprehensive 2D CAD drawings. First, we receive the registered point cloud data from our client. After thoroughly inspecting the point cloud file, we transfer it into CAD software like AutoCAD. Then, we produce the required 2D drawings for our clients, such as floor plans, internal and external elevations, sections, ceiling plans, and loft and roof plans.
Our precise Point Cloud to 2D CAD conversions have been advantageous to architects, builders, contractors, and engineers.
Our expertise in Laser Scanning and Measured Building Surveys enables us to provide highly accurate and detailed Point Cloud to 2D CAD conversions in a cost- and time-efficient manner.
We have successfully delivered a wide range of projects for our clients, and we are confident that we can provide you with the same level of high-quality service. If you are interested in our point cloud to 2D CAD services, please don’t hesitate to contact us to discuss your specific needs and requirements.
We look forward to working with you!


Contact Us
- London, UK
- +44 7555 28 28 80
- info@3dBuildingSurvey.com

















































